FATÁJ-online szaklap: események, gazdasági jelenségek a faiparban, bútoriparban, asztalosságban, erdőgazdálkodásban és a kapcsolódó területeken. Beszámolók, riportok, sajtószemle, ...
FELIRATKOZÁS FATÁJ-Online hírlevélre.
Kérem jelezze szakterületét, cégét, annak kapcsolóit.
Hivatkozás:
Ha felhasználja bármely cikket a FATÁJ-ból, hivatkozzon rá annak kapcsolójával is.

STIHL - Nemzedékekre tervezve

Mátyás Fakereskedo Kft
METAMOB - akciós MetaGO ajánlata
HUNNIA FAGÉP - Jó magyarnak lenni!
Faipari gépek -> Stonewood Kft
FATÁJ nyitólap
FATÁJ archívum:

FATÁJ-online
médiaajánlat
pdf


FAGOSZ, Fagazdasági Országos Szakmai Szövetség
A FAGOSZ a FATÁJ kiadója.

Dr. Gerencsér Kinga: Fafeldolgozás mobil szalagfűrésszel
(A 2002-ben megjelent kiadvány online változata.)

Keres egy céget, intézményt, iskolát? Kezdje itt:
fatudakozo.hu
woodinfo.hu
woodinfo.eu
Akác
termékek
Magyar-
országról:
hungarobinia.hu
FAIPARI, ERDÉSZETI
apróhirdetések
DÍJMENTESEN

FAIPARI, ERDÉSZETI
szakkönyvek



FAGOSZ filmtár a Hazai Erdésznél

Nemzeti kincsünk az erdő - 40 kisfilm

Erdészeti és Faipari Dolgozók Szakszervezete

Magán Erdotulajdonosok és Gazdálkodók Országos Szövetsége

Országos Erdészeti Egyesület

Hobbi Faesztergálás


A pdf-ekhez az Acrobat Reader itt tölthető le:


2009-04-02

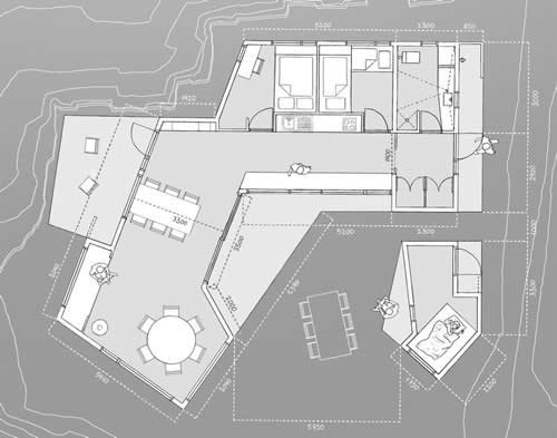
Lazítsunk - fantasztikus faház a sziklákon, norvég módra

Hagyományos és modern elemeket ötvöz a Fantastic Norway iroda által tervezett, tengerparti faház. Megmutatjuk a különleges épületet.

Norvég és nemzetközi elismeréseket is besöpört már a 2004-ben alapított Fantastic Norway építésziroda. Az oslói csapat nem csak tervez, hanem szakmai fórumokat is szervez hazájában - jellegzetes, vörös színű kocsikaravánjukkal szinte az egész országot bejárták.

 

Munkáik közül most egy 77 négyzetméteres faházat mutatunk meg. Az épület Fosen fehér szikláin áll, úgy alakították ki, hogy minél több védelmet nyújtson az uralkodó szelek ellen, illetve a lehető legjobban "beolvadjon" a tájba.

 


Forrás: IngatlanMenedzser

 

 

DomoTrend Kft - Lakberendezés Európa neves design-muhelyeibol.

A Microsonic Hunter-1™ kifejezetten olyan eszköz, mely az impulzusszeru zajbehatás káros következményeitol (dörej-ártalom) óvja meg viselojét, míg csendes környezetben a kello hallást biztosítja.

AKE - A perfekt megoldás

Dunaker Kft - Alapítva 1986

105 hazai furészüzem gazdasági teljesítménye - 2010. - Megvizsgáltunk 105 hazai furészüzemet muködteto vállalkozást (60 kemény-lombos, 44 lágy-lombos, 1 fenyo-feldolgozó) a 2010-es évi teljesítményei alapján.

Fagazdasági felszámolás számláló - 2012.május - Összegyujtöttük a fagazdaság szakterületein muködo (muködött) Magyarországon bejegyzett cégeket, amelyeknél a 2012-es évben indult el a felszámolási, ill. végelszámolási eljárás.

Grube Kft

Zalaerdő Zrt - Erdészek az erdoért

Forestinvest.hu

Erdészeti gépek, eszközök, muszerek, kiegészítok kereskedelme.

ERFARET Tudásközpont

Magyar Belsőépítészet

FATUDAKOZÓ - az online faipari cégtár

KARDEX Kft - Erdészeti-faipari termelés, kereskedelem. Furészáru termelés: elsosorban bükk és tölgy. Belföldi, nemzetközi szállítás. Export-import tevékenység.

LEITZ Hungária Szerszám Kft




 A FATÁJ lapot kiadja a FAGOSZ
Minden jog fenntartva. All rights reserved.